輪胎式集裝箱門式起重機
描 述:
一、 產品概述1、 輪胎式集裝箱門式起重機是集裝箱貨場進行堆碼作業的專用機械,廣泛應用于港口碼頭及集裝箱貨場。2、 采用專用集裝箱吊具,可起吊20、40、45標準集裝箱及液壓儲存罐。3、 大、小車運行...
咨詢熱線:17737366688 17737366688
咨詢熱線:17737366688 一、 產品概述
1、 輪胎式集裝箱門式起重機是集裝箱貨場進行堆碼作業的專用機械,廣泛應用于港口碼頭及集裝箱貨場。
2、 采用專用集裝箱吊具,可起吊20、40、45標準集裝箱及液壓儲存罐。
3、 大、小車運行機松采用三合一減速機,方便維護。
4、 輪胎可實現90。轉向,進行換場作業,同時具備20。或45。的斜行功能。
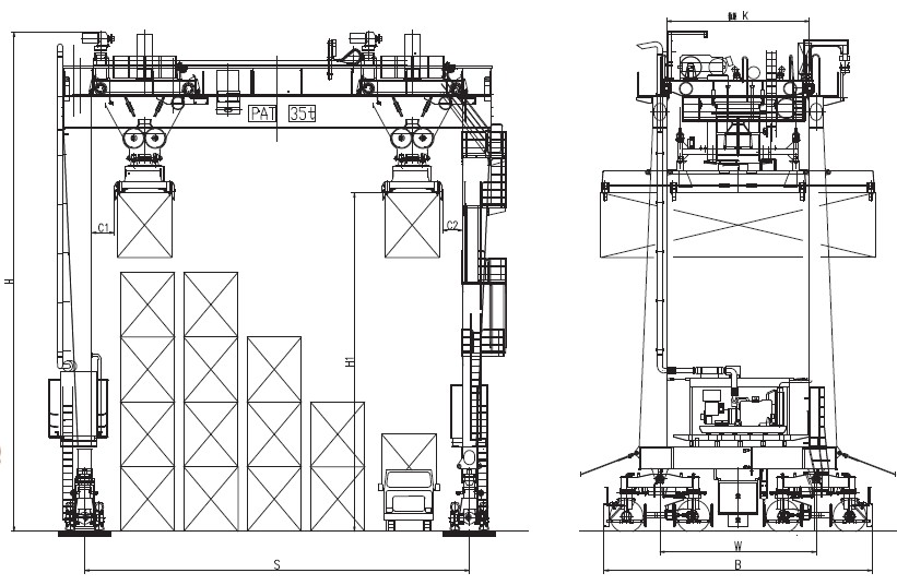
二、產品簡圖與技術規格(35t)



多年經驗 專注筑造品質!

17737366688